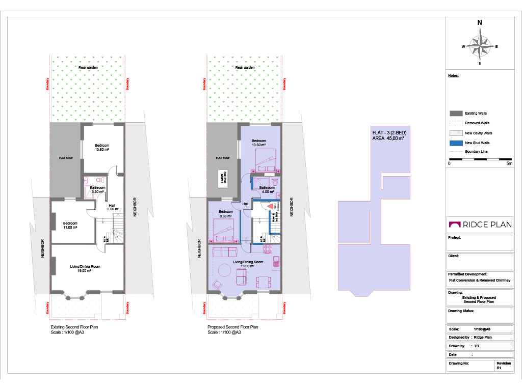
We offer complete drawing sets for subdividing houses into multiple self-contained flats or vice versa.Our work covers space planning, fire safety layout, and compliance with access and space standards.Ideal for developers or landlords seeking to maximize residential yield legally.

Flat conversion projects, including:

• Site and location plans
• Existing and proposed floor plans
• Existing and proposed elevations
• Fire safety
• Access and amenity considerations
• Unit size compliance